Charmantes Büro & loftartige Veranstaltungsräume / Werkstatt!

Objekt 4020 | 943
1120 Wien
Nähe: Bahnhof Meidling
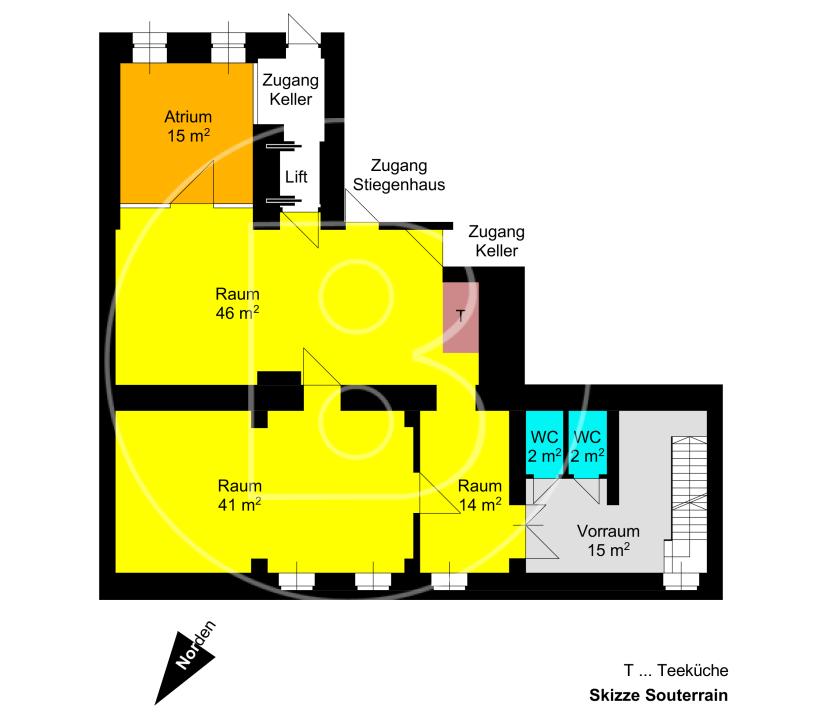
Bürofläche: 188 m²
Nutzfläche: 188 m²
Gesamtmiete: € 2.136,02

Immobilien Weiterempfehlung
Empfänger
Absender
Der Absender hat die ausdrückliche Zustimmung vom Empfänger eine Weiterleitung der Liegenschaftsdaten zu veranlassen.
Die BONREAL Immobilienvermittlung GmbH verarbeitet personenbezogene Daten nach den datenschutzrechtlichen Bestimmungen. Weitergehende Informationen finden Sie in unseren Datenschutzrichtlinien.

Weitere Eckdaten

Flächen

Nutzfläche
188 m²
Bürofläche
188 m²
Zimmer
4
Bäder
3
Terrassen
1

Preise

Brutto-Gesamtmiete
€ 2.136,02
Nettokaltmiete ohne BK
€ 2.136,02
Hauptmietzins netto
€ 1.215,99
Mehrwertsteuer
€ 243,20
Betriebskosten bei Vermietung
€ 449,84
USt. auf Betriebskosten
€ 89,97
Nettoheizkosten
€ 114,18
USt. auf Heizkosten
€ 22,84
provisionspflichtig
ja
Maklercourtage
3 Bruttomieten zzgl. 20% MwSt.
Kaution
€ 9.000,-

Zustand

Baujahr
1900
Letzte Modernisierung
2015
Zustand
Gepflegt

Energieausweis

HWB
39,25 kWh/m2a
fGEE
1,11

Ausstattung

Heizung
Zentralheizung, Fernwärme

Personenlift

Sonstiges

Verfügbar ab
sofort
max. Mietdauer
10 Jahre

Kontakt

Dkfm. Dirk Dose
Dkfm. Dirk Dose
Telefon: +436643829858
dirk.dose@bonreal.com