Phänomenale Wohnung in grandioser Lage!

Objekt 4020 | 2070
1180 Wien
Nähe: Pötzleinsdorf
Wohnfläche: 155 m²
Kaufpreis: € 1.999.000,-

Zum Verkauf steht ein Immobilienjuwel in exzellenter Wohnlage des 18. Wiener Gemeindebezirkes. Umgeben von viel Grün und Ruhe und doch mit kompletter städtischer Infrastruktur und guter öffentlicher Verkehrsanbindung. 

Das äußerst exklusive Haus wurde im Jahr 2020 nach höchsten Qualitätsstandards neu errichtet und umfasst insgesamt nur vier Eigentumswohnungen. Die zum Verkauf stehende Wohnung befindet sich im 2. Liftstock. Der Lift führt - wie bei einer Penthousewohnung - direkt von der Tiefgarage in den Wohnbereich. 

Es stehen auf einer Ebene ca. 155 m² Wohnnutzfläche zur Verfügung, die sich im Wesentlichen auf vier Zimmer, eine Küche, zwei Bäder, drei WCs, ein Garderobenbereich und einen Hauswirtschaftsraum aufteilen. 
Die Wohnung ist überwiegend südseitig ausgerichtet und befindet sich in einem nahezu neuwertigen Zustand.

Es wurden ausschließlich beste Qualitätsprodukte verwendet: raumhohe Innentüren, exklusive Dielenböden aus Eiche, hochwertige Sanitärmöbel und Armaturen, dreifach verglaste Holz-Alu-Fenster, elektronisch steuerbarer außenliegender textiler Sonnenschutz, BUS-Elektrosystem, Alarmanlage. Zu dieser Aufzählung gehören unbedingt auch die exzellente Küchenausstattung - ein echter Hingucker - sowie die fix eingebauten Garderobenschränke der Sonderklasse. 

Der ca. 67 m² Wohn-/Essbereich mit offenem Kamin ist lichtdurchflutet und führt direkt auf die
ca. 28 m² Terrasse mit schöner Fernsicht. Zusätzlich gibt es noch einen ca. 6 m² großen, ostseitig orientierten Balkon, der vom Schlafzimmer aus begehbar ist.

Die genaue Raumaufteilung kann dem beigelegten Grundrissplan entnommen werden. 

Heizung und Warmwasser werden zentral vom Haus mittels einer Erdwärmepumpe bereitgestellt. Zusätzlich vorhanden ist ein zentrales Gasbrennwertgerät als System-Backup.

In der Wohnung gibt es eine über Raumthermostate steuerbare Fußbodenheizung sowie eine Deckenkühlung.

Die monatliche Betriebskostenvorschreibung inkludiert bereits die Akontokosten für Heizung, Warm- und Kaltwasser, Kühlung, Reparaturrücklage und Mehrwertsteuer. Aktuell werden diesbezüglich von der Hausverwaltung € 597,71 monatlich in Rechnung gestellt. 

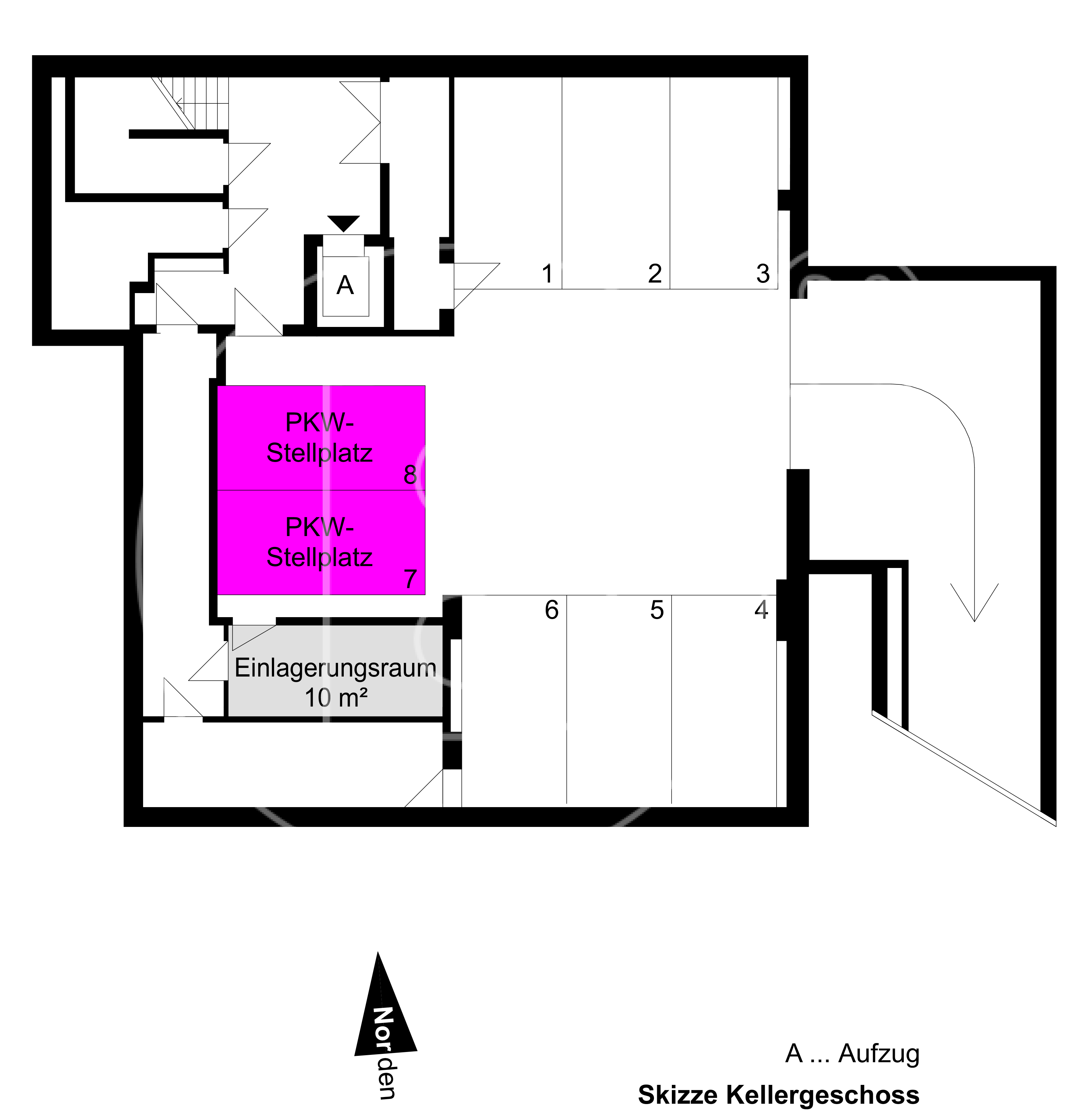
Der Wohnung zugeordnet ist ein ca. 10 m² großer Einlagerungsraum direkt neben der Tiefgarage. 

Optional können zwei separat parifizierte Tiefgaragenplätze um je € 50.000,- zusätzlich erworben werden. Die monatlichen Betriebskosten für die Tiefgaragenplätze betragen aktuell € 41,45 pro Stellplatz.

Eine in jeder Hinsicht phänomenale Liegenschaft, die nach individueller Terminvereinbarung übernommen werden kann.

Der Heizwärmebedarf aus dem Energieausweis vom 09.01.2019 beträgt 35,9 kWh/m²a.
Der Gesamtenergieeffizienz-Faktor ist 0,68.

Weitere Eckdaten

Flächen

Wohnfläche
155 m²
Zimmer
4
Bäder
2
WCs
3
Balkone
1
Terrassen
1

Preise

Kaufpreis
€ 1.999.000,-
provisionspflichtig
ja
Maklercourtage
3% vom Kaufpreis zzgl. 20% MwSt.

Stellplätze

Anzahl Tiefgaragenplätze
2

Zustand

Baujahr
2020
Zustand
Neuwertig

Energieausweis

HWB
35,9 kWh/m2a
fGEE
0,68

Ausstattung

Heizung
Zentralheizung, Gas, Erdwärme (Wärmepumpe Sole-Wasser)

Sonstiges

Verfügbar ab
nach Vereinbarung

Kontakt

Dkfm. Dirk Dose
Dkfm. Dirk Dose
Telefon: +436643829858
dirk.dose@bonreal.com