Loftartige Seminar-, Veranstaltungs- oder Werkstatträumlichkeiten!

Objekt 4020 | 940
1120 Wien
Nähe: Bahnhof Meidling
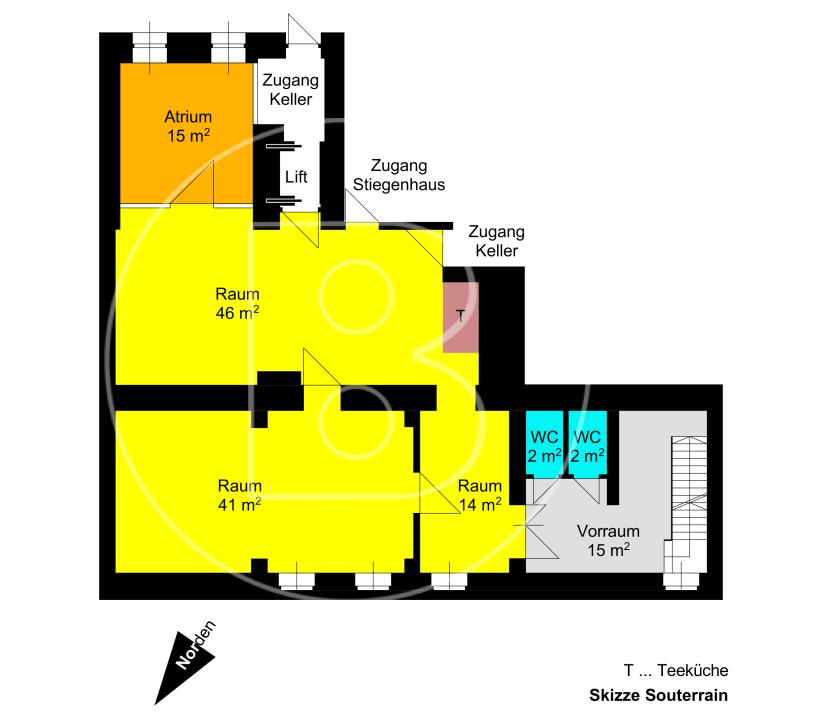
Nutzfläche: 141 m²
Gesamtmiete: € 1.481,18

Anfrage an BONREAL
Zustimmung zum Tätigwerden
Die BONREAL Immobilienvermittlung GmbH verarbeitet personenbezogene Daten nach den datenschutzrechtlichen Bestimmungen. Weitergehende Informationen finden Sie in unseren Datenschutzrichtlinien.

Weitere Eckdaten

Flächen

Nutzfläche
141 m²
Zimmer
3
Bäder
2
Terrassen
1

Preise

Brutto-Gesamtmiete
€ 1.481,18
Nettokaltmiete ohne BK
€ 1.481,18
Hauptmietzins netto
€ 810,48
Mehrwertsteuer
€ 162,09
Betriebskosten bei Vermietung
€ 338,04
USt. auf Betriebskosten
€ 67,61
Nettoheizkosten
€ 85,80
USt. auf Heizkosten
€ 17,16
provisionspflichtig
ja
Maklercourtage
3 BMM zzgl. 20% MwSt.
Kaution
€ 6.000,-

Zustand

Baujahr
1900
Letzte Modernisierung
2015
Zustand
Gepflegt

Energieausweis

HWB
39,25 kWh/m2a
fGEE
1,11

Ausstattung

Heizung
Zentralheizung, Fernwärme
Möblierung
teilmöbliert

Personenlift

Sonstiges

Verfügbar ab
sofort
max. Mietdauer
10 Jahre

Kontakt

Dkfm. Dirk Dose
Dkfm. Dirk Dose
Telefon: +436643829858
dirk.dose@bonreal.com